Key Features
- Open-plan kitchen/dining room with bifold doors to the garden
- Spacious living room and dedicated study
- Bedroom 1 with built-in wardrobe and ensuite
- Three further bedrooms with shared family bathroom
- Utility/WC and garage for everyday convenience
- Energy-efficient heating and premium finishes throughout
Property Details
Price: £690,000
Property Size: 1372.4 Sq Ft
Property Type: Detached
Property Status: For Sale
Bedrooms: 4
Bathrooms: 2
Parking Spaces: 1
Garage Spaces: 1
Description
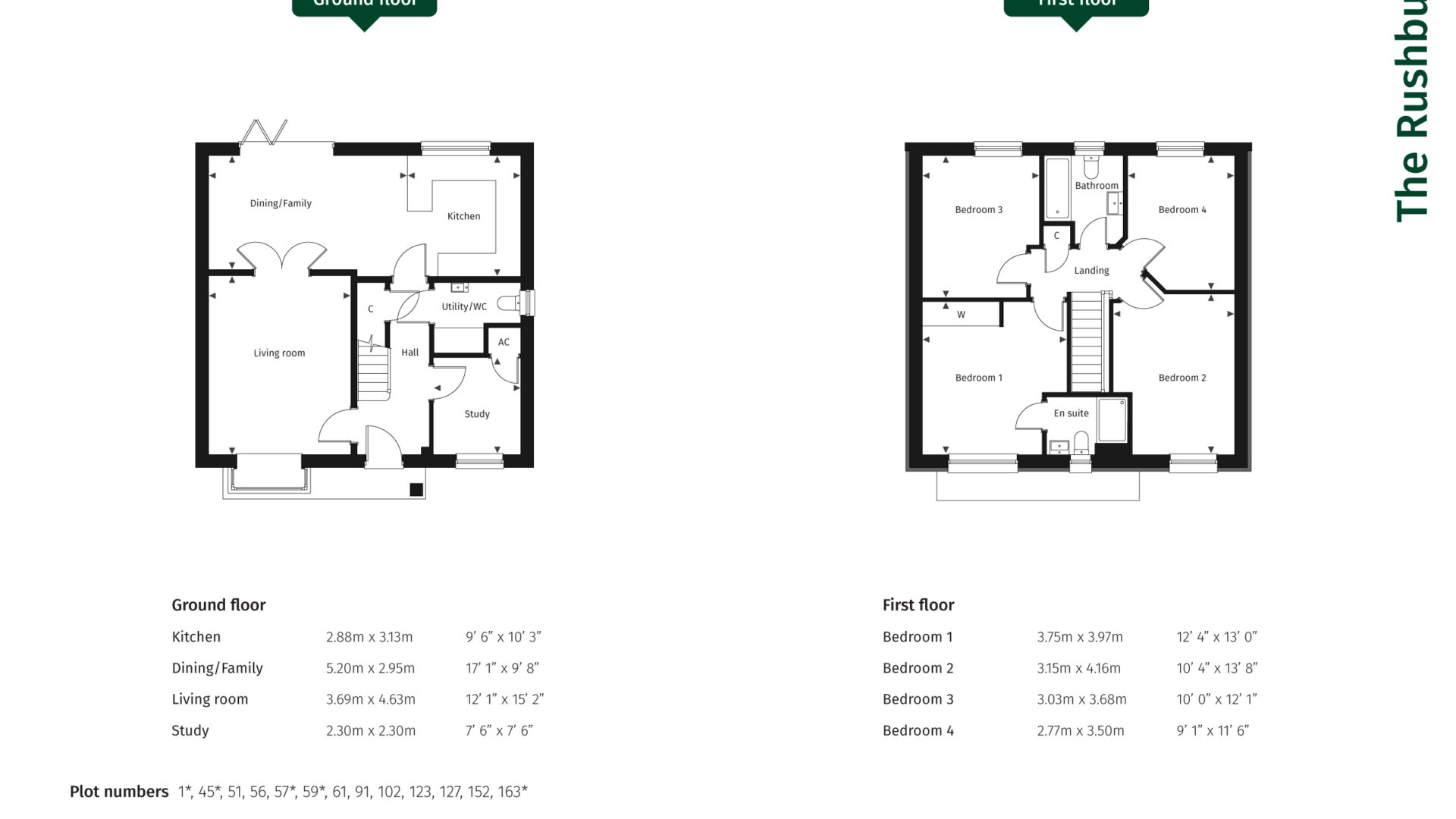
Introducing The Rushbury, a beautifully designed 4-bedroom detached home with a garage at Danes Park, offering generous space and contemporary styling throughout. The ground-floor features a dedicated study, a spacious living room, and a stunning open-plan kitchen/dining room with stylish bifold doors opening onto the rear garden Ñ perfect for entertaining and family life. A practical utility/WC adds convenience and functionality.
Upstairs, bedroom 1 includes a built-in wardrobe and private ensuite, while bedrooms 2, 3, and 4 are all well-proportioned and share a modern family bathroom. With high-quality finishes, energy-efficient heating, and a layout designed for modern living, The Rushbury delivers elegance, comfort, and flexibility in a desirable setting.
Location Details
Name/ No.: Plot 163, Rushbury
Street: Danes Park
Town / City: New Milton
County: Hampshire
Postcode: BH25 5FY
What's Nearby
Specification
- Luxury units with soft close cabinet doors and drawers
- Integrated stainless steel oven and combi microwave
- Induction hob with chimney style extractor hood
- Integrated dishwasher
- Integrated fridge/freezer
- Space for washing machine
- One and a half bowl sink with chrome mixer tap
- Laminate worktop with upstand and glass splashback above
hob - Under cabinet lighting
- Karndean flooring to kitchen and open plan dining/family
areas*
- White sanitary ware with contemporary chrome fittings
- Full and half height wall tiling to bathroom and en suite*
- Wall mounted vanity units to bathroom and en suite
- Anthracite heated towel rails to bathroom and en suite
- Mirror to bathroom and ensuite
- Mirror to cloakroom
- Karndean flooring to bathroom and en suite*
Lighting points and electrical fittings provided in ample quantity
throughout plus:
- Wiring for TV aerial, to be connected by purchaser
- Recessed ceiling LED downlighters to kitchen, utility, hall,
landing, bathroom, en suite and cloakroom - Houses: Chrome sockets & switches to ground floor and
landing (excluding cupboards) with white switches to first floor - Bungalows: Chrome sockets & switches to all rooms except
bedrooms, utilities and cupboards - Outside lighting to front entrance and private areas
- TV, Fibre and Sky Q points provided to home**
- Digital TV aerial cable
- Air Source Heat Pump (ASHP) or a heat pump cylinder.^
- Multi-zone underfloor heating to ground floor
- Radiators with thermostatic valves and zone control to first
floor
- Oak faced doors with grooves with contemporary chrome lever
handles - Flat plastered ceilings finished in matt white emulsion
- Moulded architraves with co-ordinated skirting boards in white
satin finish - Walls finished in matt white emulsion
- Wardrobes to bedroom 1, with full height mirror doors, internal
shelf and hanging rail - PVCu double glazed doors and windows, colour varies
- EV charging point
- Block paviors to front drive, textured slabs to patios and rear
path - Power and light to the garage (if within the curtilage of the
property) with provision for future electric door - Rear gardens turfed
- Outside tap
- Elevations vary, please ask for plot specific elevation finishes
Additional Media
Mortgage Calculator
Terms and Conditions
The information provided by Penny Farthing's mortgage calculator is for illustrative purposes only and accuracy is not guaranteed.
The values and figures shown are hypothetical and may not be applicable to your individual situation. Be sure to consult a financial professional prior to relying on the results.
Stamp Duty Calculator
Expected Stamp Duty
Disclaimer - for a complete breakdown of stamp duty tax, including for investors and customers with more than one property, visit the government’s website









