Key Features
- Spacious living room with French doors to the rear garden
- Open-plan kitchen/dining room with stylish bifold doors
- Bedroom 1 with built-in wardrobe and modern ensuite
- Two further large bedrooms and a family bathroom
- Ground-floor study, WC, and storage cupboard
- Energy-efficient heating and high-quality finishes throughout
Property Details
Price: £550,000
Property Size: 1148.52 Sq Ft
Property Type: Detached
Property Status: For Sale
Bedrooms: 3
Bathrooms: 2
Parking Spaces: 2
Garage Spaces: 1
Description
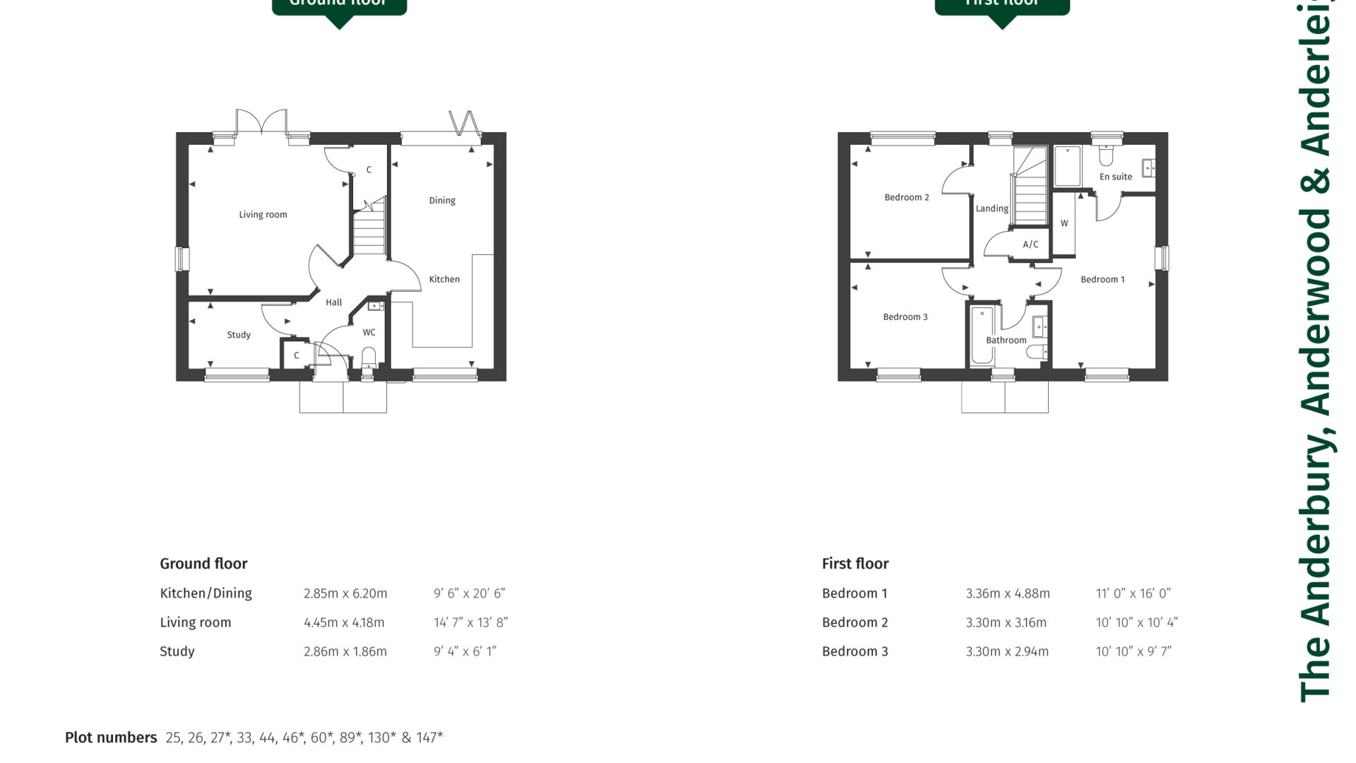
Introducing The Anderbury, a stunning 3-bedroom detached home with a garage at Danes Park. The ground-floor features a spacious dual-aspect living room with French doors opening onto the garden, creating a bright and inviting space to relax or entertain. The open-plan kitchen/dining room includes stylish bifold doors to the rear garden, perfect for indoor-outdoor living. A dedicated study, ground-floor WC, and useful storage cupboard add to the homes practicality.
Upstairs, bedroom 1 includes a built-in wardrobe and sleek ensuite, while bedrooms 2 and 3 are both generously sized and ideal for family or guests. A contemporary family bathroom completes this beautifully balanced home. With premium finishes, energy-efficient heating, and elegant design throughout, The Anderbury perfectly blends comfort and sophistication.
The price of Plot 25 has been revised to £550,000. Please note that no additional incentives or offers apply at this price point except for The Pennyfarthing Promise.
Location Details
Name/ No.: Plot 25, Anderbury
Street: Danes Park
Town / City: New Milton
County: Hampshire
Postcode: BH25 5FQ
What's Nearby
Specification
- Luxury units with soft close cabinet doors and drawers
- Integrated stainless steel oven and combi microwave
- Induction hob with chimney style extractor hood
- Integrated dishwasher
- Integrated fridge/freezer
- Space for washing machine
- One and a half bowl sink with chrome mixer tap
- Laminate worktop with upstand and glass splashback above
hob - Under cabinet lighting
- Karndean flooring to kitchen and open plan dining/family
areas*
- White sanitary ware with contemporary chrome fittings
- Full and half height wall tiling to bathroom and en suite*
- Wall mounted vanity units to bathroom and en suite
- Anthracite heated towel rails to bathroom and en suite
- Mirror to bathroom and ensuite
- Mirror to cloakroom
- Karndean flooring to bathroom and en suite*
Lighting points and electrical fittings provided in ample quantity
throughout plus:
- Wiring for TV aerial, to be connected by purchaser
- Recessed ceiling LED downlighters to kitchen, utility, hall,
landing, bathroom, en suite and cloakroom - Houses: Chrome sockets & switches to ground floor and
landing (excluding cupboards) with white switches to first floor - Bungalows: Chrome sockets & switches to all rooms except
bedrooms, utilities and cupboards - Outside lighting to front entrance and private areas
- TV, Fibre and Sky Q points provided to home**
- Digital TV aerial cable
- Air Source Heat Pump (ASHP) or a heat pump cylinder.^
- Multi-zone underfloor heating to ground floor
- Radiators with thermostatic valves and zone control to first
floor
- Oak faced doors with grooves with contemporary chrome lever
handles - Flat plastered ceilings finished in matt white emulsion
- Moulded architraves with co-ordinated skirting boards in white
satin finish - Walls finished in matt white emulsion
- Wardrobes to bedroom 1, with full height mirror doors, internal
shelf and hanging rail - PVCu double glazed doors and windows, colour varies
- EV charging point
- Block paviors to front drive, textured slabs to patios and rear
path - Power and light to the garage (if within the curtilage of the
property) with provision for future electric door - Rear gardens turfed
- Outside tap
- Elevations vary, please ask for plot specific elevation finishes
Additional Media
Mortgage Calculator
Terms and Conditions
The information provided by Penny Farthing's mortgage calculator is for illustrative purposes only and accuracy is not guaranteed.
The values and figures shown are hypothetical and may not be applicable to your individual situation. Be sure to consult a financial professional prior to relying on the results.
Stamp Duty Calculator
Expected Stamp Duty
Disclaimer - for a complete breakdown of stamp duty tax, including for investors and customers with more than one property, visit the government’s website












